- Vie de l'Université,
Tiers-lieu de la Manufacture : le projet en images
Publié le 20 décembre 2024 – Mis à jour le 17 octobre 2025
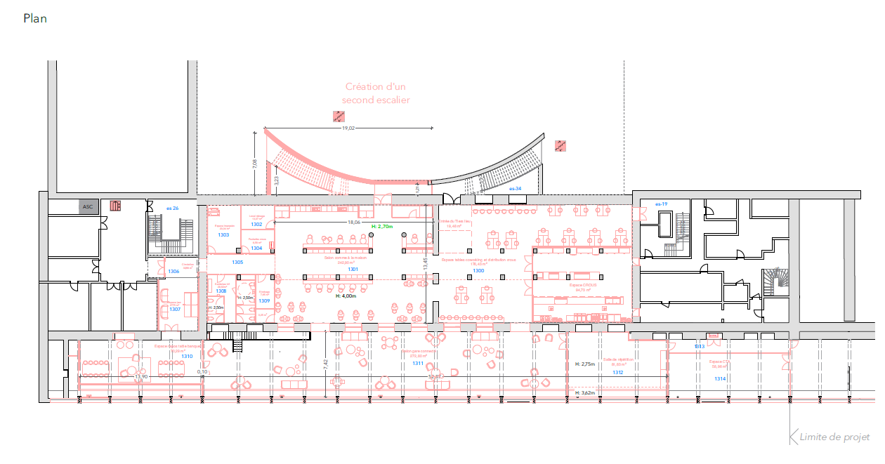
Le plan du projet
Premiers ateliers de travail
?Malwina Debroise
L'avant-corps
Le futur tiers-lieu (projet architecte)
?Atelier Braillon Architecte
Le chantier : début des travaux en décembre 2024
Chantier de jour / Chantier de nuit pendant la période de fermeture de l'université.? Création d'un 2e escalier dans la cour nord : un chantier pharaonique !
?Guy Olagnon
Mise à jour : 17 octobre 2025
